PROCEDURA APERTA PER L’AFFIDAMENTO IN CONCESSIONE DEL SERVIZIO DI GESTIONE ED EVENTUALE USO DELLA PALESTRA “CASOLI – SAN PROSPERO” PER IL PERIODO 01/07/2023 – 30/06/2027
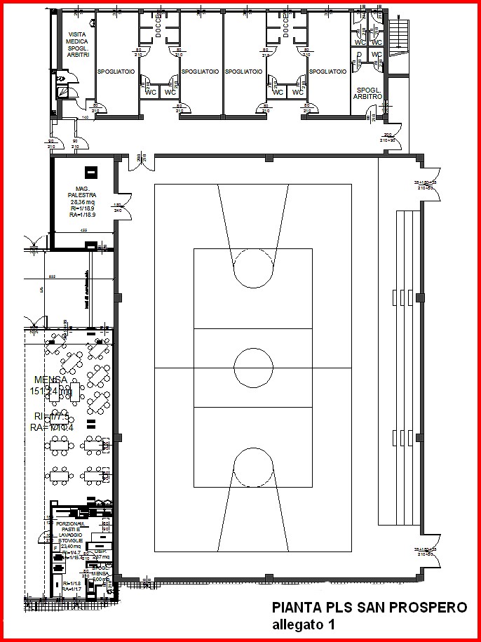
La Fondazione per lo Sport del Comune di Reggio Emilia intende procedere all’affidamento in concessione del servizio di gestione ed eventuale uso della Paestra “Casoli – San Prospero” sita in Via Allende n.
La Fondazione per lo Sport del Comune di Reggio Emilia intende procedere all’affidamento in concessione del servizio di gestione ed eventuale uso della Paestra “Casoli – San Prospero” sita in Via Allende n. 3 a Reggio Emilia per il periodo 01/07/2023 – 30/06/2027.
A tal fine si pubblica il Bando-Disciplinare di gara nonché tutta la modulistica e la documentazione relativa alla procedura in oggetto.
Le offerte devono pervenire, secondo le modalità di cui al relativo Bando di gara, entro le ore 12:00 del giorno lunedì 12 giugno 2023.
Ultimo aggiornamento
14 Settembre 2023, 10:42
FONDAZIONE PER LO SPORT